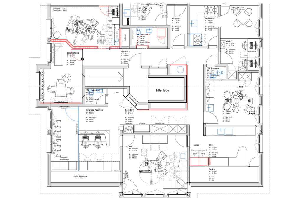
Zahnarztpraxis Ebmatingen | Ebmatingen
Bauherr: Dres. med. dent. R. Brietze & I. Gabriel, Ebmadingen
Realisierung: 2021
Auftragsart: Direktauftrag
Innenarchitektur: Marcel Baechler, Innenarchitekt vsi.asai.
Verantwortlicher Planer: Marcel Baechler, Innenarchitekt vsi.asai.
Bauleitung: Marcel Baechler, Innenarchitekt vsi.asai.
Vor- | Nachher (Schieber nach Links und Rechts bewegen)